Trivsam fyra med låg månadsavgift!
Nyckelberget, Köping
Fogdegatan 3 A
-
Typ: Bostadsrätt
-
Rum: 4, varav 3 sovrum
-
Boarea: 97 kvm
-
Våningsplan: 1 av 3
-
Byggår: 1954
-
Avgift: 5 416 SEK/månad
-
Pris: 995 000 SEK
Kommande visningar
Inga visningar planerade. Kontakta mäklaren för mer information.
Bilder
Planlösning
Beskrivning
Välkommen till en ljus och fin bostad med neutrala färgtoner och fräscha ytskikt. Här bor du på en lugn och trivsam adress med närhet till både Köpings centrum och grönskande omgivningar. Denna generösa fyrarumslägenhet om hela 97 kvadratmeter bjuder på en perfekt kombination av stil, funktion och flexibilitet – ett boende för dig som vill ha det lilla extra. Lägenheten är en unik sammanslagning som erbjuder två badrum, två rymliga balkonger med härligt solläge, tre ljusa sovrum, kök och trivsamt vardagsrum. Två entréer från trapphuset ger extra bekvämlighet och öppnar upp för smarta lösningar – kanske ett generationsboende eller ett eget arbetsutrymme? Här bor du i en attraktiv och välskött bostadsrättsförening med god ekonomi, låg månadsavgift och tillgång till gym. Ett hem att trivas i under många år framöver!
Rumsbeskrivningar
-
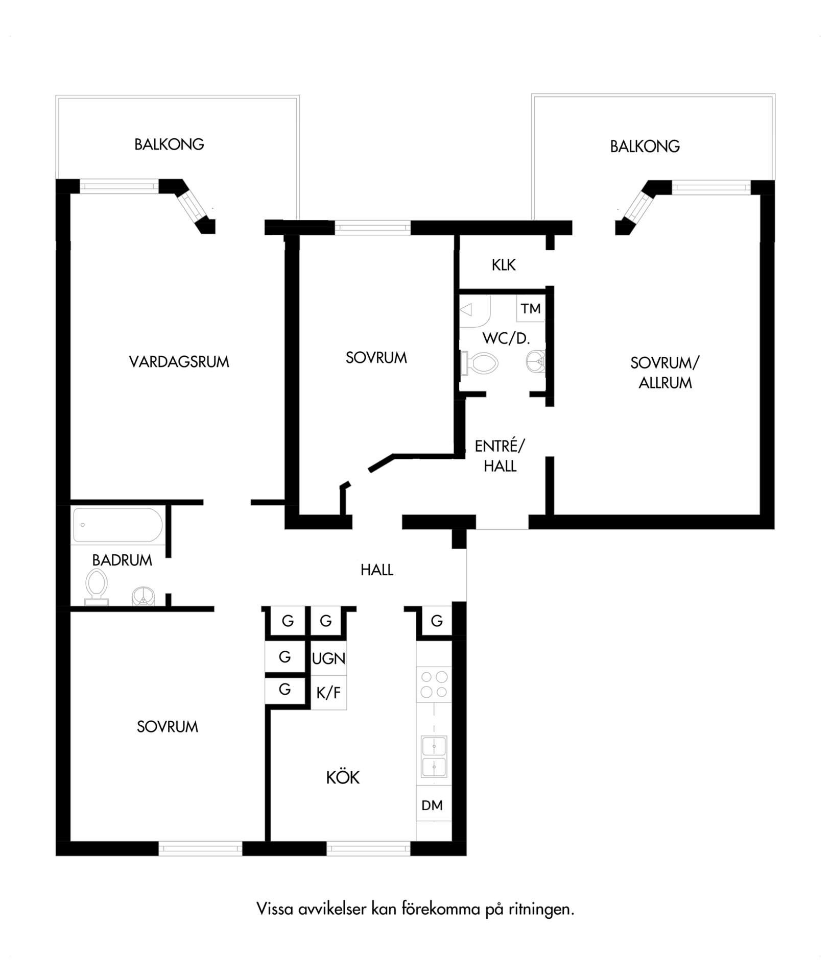
Entré/hall :
Nyrenoverad hall med gott om plats för avhängning av ytterkläder och skor. Här finns slitstarkt laminatgolv med vitmålade väggar.
-
Sovrum/allrum :
Rymligt sovrum med klädkammare, laminatgolv, målade väggar och tapeter från 2024. Från detta rum nås den andra balkongen i bostaden.
-
Badrum :
Renoverat badrum från 2022 (våtrumsintyg finns ej). Kakel och klinker i härlig grå ton. Badrummet ät inrett med toalettstol, handfat, duschplats med skjutbara väggar och tvättmaskin.
-
Sovrum :
Totalrenoverat sovrum med slitstarkt laminatgolv och vitmålade väggar.
-
Kök :
Delvis renoverat kök från 2021 med nytt kakel, ny bänkskiva, målade luckor och -väggar. I köket finns även plastmatta på golvet samt inbyggd ugn, fläkt och diskmaskin. Kyl och frys ny från 2025.
-
Hall :
Hall med målade väggar och laminatgolv. Här finns även en garderob med överskåp samt linneskåp och plats för tvättkorg.
-
Sovrum :
Mysigt sovrum med laminatgolv, målade väggar (2024) och två garderober.
-
Badrum :
Renoverat badrum från 2021 (våtrumsintyg finns ej). Badrummet är inrett med kakel och klinker i neutrala toner samt handfat med kommod, toalettstol och badkar.
-
Vardagsrum :
Ljust vardagsrum med målade väggar (2024), parkettgolv och utgång till den första balkongen
-
Uteplats/balkong finns: Ja
-
Balkong:
Bostaden har två rymliga balkonger i söderläge med utsikt mot Himlabacken och Fogdegatan.
Fakta
Allmän information
- Objektskategori: Bostadsrätt
- Objektstyp: Lägenhet
- Storlek: 4 rum, varav 3 sovrum. Boarea: 97 kvm. Boareabeskrivning: Uppgifter enligt bostadsrättsföreningen..
- Beskrivning av övriga upplåtna utrymmen: 2 st vindsförråd samt 2 st källarförråd tillhör bostaden.
- Andelstal: 2,35174.
-
Andel av BRF:s nettoskuldsättning: 86 527 SEK
-
Nettoskuldsättning kommentar:
Bostadsrättens indirekta nettoskuldsättning anger hur stor andel av bostadsrättsföreningens lån som indirekt belastar bostadsrätten. Det underlag som ligger till grund för beräkning av uppgiften har inhämtats från bostadsrättsföreningen, dels från årsredovisning dels från utdrag ur bostadsrättsföreningens lägenhetsregister.
- Lägenhetsnummer BRF: 61, 62
- Bostadsrättsförening: Bostadsrättsföreningen Bautastenen. Markägare: Föreningen äger marken.
-
Fastighetsbeteckning: Bautastenen 5
-
UppdragsID: GAG VHC
Byggnad
-
Allmän information Kommentar:
Föreningens fastighet, Bautastenen 5 bebyggdes 1954 av Anders Diös AB och är belägen i Köpings kommun. På fastigheten finns 2 st bostadshus innehållande 69 lägenheter och 6 lokaler, varav 4 lokaler är hyresrätter och 2 lokaler disponeras av föreningen.
- Byggår: 1954
-
Utförda renoveringar:
1988: Nya balkonger
1992: Nya stammar
2010: Ny fasad och fönster
2020: Solcellspaneler
2020 Fiber
2022 Relining spillvattensledningar
2023 Motionslokal - Hiss finns: Nej
-
TV/Internet beskrivning:
TV/Bredband är installerat via Köping Kabel-TV:s fibernät. Brf Bautastenen har ett kollektivavtal med Köping Kabel-TV som täcker deras basutbud för TV och bredband 250 Mbit/s för lägenheterna. Detta ingår i månadshyran.
-
Övriga utrymmen i föreningen:
Tillgång till: - Lägenhetsförråd (4 st. 2 st mindre källarförråd samt 2 st större vindsförråd) - Tvättstuga/torkrum - Grillplats och lekplats - Cykelförråd i källare - Gym - Föreningslokal
-
Energideklaration:
Energideklaration utförd:
26 mars 2019
Energistatus: Energideklaration är utförd
Energiprestanda, primärenergital: 153 kWh/m²
Energiklass: E
Besiktningsman: Henry Bergstrand, Energi Anpassning i Hallstahammar AB,
Ekonomi
- Pris: 995 000 SEK. Pristyp: Utgångspris.
-
Månadsavgift:
5 416 SEK/månad.
Beskrivning av kostnader som ingår i avgiften: Inklusive värme, vatten, sopor, kabel-TV och internet.
- Driftkostnader: Summa driftkostnad: 400 SEK/månad. Hushållsel: 400 SEK/månad.
-
Antal personer i hushållet: 4
- Pantförskrivning: Bostadsrätten är inte kontrollerad.
-
Pantsättningsavgift: 588 SEK.
- Överlåtelseavgift: 1 470 SEK. Överlåtelseavgift betalas av: Köpare.
-
Boendekostnadskalkyl:
Välkommen att kontakta ansvarig fastighetsmäklare om du vill ha hjälp med att upprätta en boendekostnadskalkyl.
- Parkering: P-plats: 5 st. 75 kr/mån. P-plats med elstolpe: 25 st. 150 kr/mån. Garage: 20 st Separat kö till samtliga.
Området
Nyckelberget
Nyckelberget är ett trivsamt bostadsområde med Himlabacken och den stora lekplatsen Bronsspännet med tekniktema som central punkt. Vid Himlabacken finns även pulkabacke, elljusspår, grusad fotbollsplan och grillplats. I närområdet finns flera lekplatser, restauranger, kiosk och snart skola F-6 (klar höst 2027, moduler är idag placerade vid Scheeleskolan). På Nyckelberget bor du med gångavstånd till centrum och shopping vid Big-Inn-området.